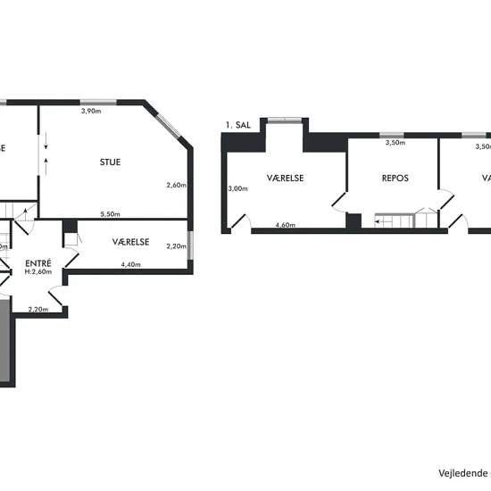
Lys og rummelig 5-værelses i to plan – centralt i Aalborg
-
Areal
- 134 m²
-
Boligtype
- Lejlighed
-
Vær
- 5 værelser
Ledig nu
Velkommen til denne charmerende og rummelige lejlighed på Vendsysselgade, beliggende i hjertet af Aalborg. Her får du en skøn bolig i to plan, der med sine fire velindrettede værelser giver dig masser af muligheder – uanset om du er et par, en lille familie eller ønsker at dele med en roomie. Lejligheden byder på en indbydende og lys stue med plads til både sofaarrangement og spisebord, så du nemt kan samle venner og familie. Køkkenet er opført i et moderne og tidløst design med god bordplads og masser af skabsplads, hvilket gør det nemt at...
- Leje
- 10.495 kr om måneden
- Placering
- 9000, Aalborg
- Lejeperiode
- Ubegrænset
- Verificeret udlejer
- Ja
- Dato
- 30 dage siden
- Ledig
- Ledig nu
- Aconto
- 1.350 kr
- Depositum
- 31.485 kr
- Forudbetalt husleje
- 10.495 kr
Sted