Nyopført rækkehus med terrasse, altan og udsigt over fjorden
-
Areal
- 94 m²
-
Boligtype
- Hus
-
Vær
- 3 værelser
Ledig nu
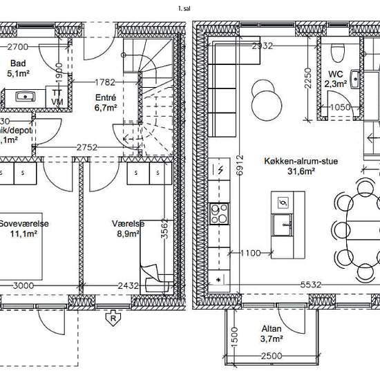
Helt nyt, flot rækkehus i 2 plan - udlejes pr. 1. november. Flyt ind i et nyt, moderne rækkehus med optimal indretning, masser af luft og lys og hele 2 toiletter. Førstesalen har udsigt over Kerteminde Fjord, og ejendommen ligger i et nybygget område i smukke, historiske Munkebo. Rækkehuset indeholder: Stueplan • Rummelig fordelingsentré med trappe til 1. sal • Flot, lyst badeværelse med store, hvide fliser i bruseområdet • Mulighed for at installere egen vaskesøjle • 2 gode værelser med indbygningsskabe • Teknik/depotrum • Egen flisete...
- Leje
- 8.995 kr om måneden
- Placering
- 5330, Munkebo
- Lejeperiode
- Ubegrænset
- Verificeret udlejer
- Ja
- Dato
- 2 dage siden
- Ledig
- Ledig nu
- Aconto
- 0 kr
- Depositum
- 26.985 kr
- Forudbetalt husleje
- 8.995 kr
Sted