Skøn 2-værelses lejlighed i Odense
-
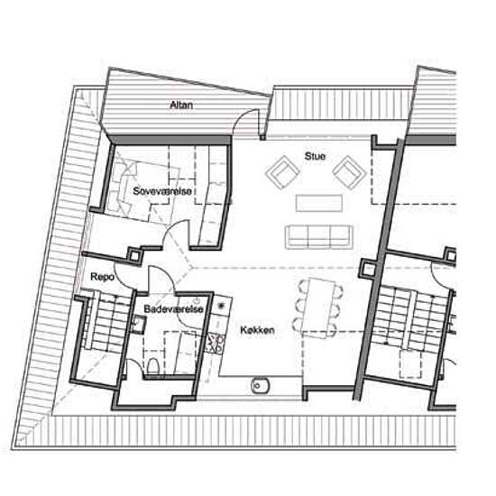
Areal
- 76 m²
-
Boligtype
- Lejlighed
-
Vær
- 2 værelser
Ledig nu
I et roligt og charmerende kvarter nær Odense centrum finder du denne skønne lejlighed, der kombinerer moderne komfort med en attraktiv beliggenhed. Her bor du tæt på indkøbsmuligheder, offentlig transport, skoler og byens liv – alt sammen inden for kort afstand. Lejligheden er udstyret med alt i hårde hvidevarer, herunder opvaskemaskine, mikroovn, vaskemaskine og tørretumbler. Gulvvarme i hele boligen sikrer en behagelig temperatur året rundt – og uden radiatorer får du frihed til at indrette præcis, som du ønsker. Som en ekstra bonus har l...
- Leje
- 7.825 kr om måneden
- Placering
- 5000, Odense C
- Lejeperiode
- -
- Verificeret udlejer
- Ja
- Dato
- 6 dage siden
- Ledig
- Ledig nu
- Aconto
- 300 kr
- Depositum
- 31.300 kr
- Forudbetalt husleje
- 7.825 kr
Sted