Skøn 2-værelses med altan og lav indflytningspris
-
Areal
- 35 m²
-
Boligtype
- Lejlighed
-
Vær
- 2 værelser
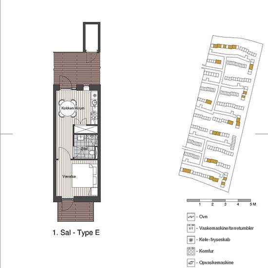
Kun 7 km fra Aarhus C og tæt på hyggelige Tilst med indkøbsmuligheder og foreningsliv, finder du denne eftertragtede 2-værelses lejlighed, som er perfekt til dig, der studerer. Alle kvadratmeter er optimalt udnyttet og i lejligheden finder du: • Køkken-alrum med plads til lille spisebord • Badeværelse med stor glasbruseniche, skabe og væghængt toilet • Gangareal med plads til skabe • Rummelig stue/soveværelse med udgang til solrig altan Overalt i lejligheden er der gulvvarme og ved indflytning medfølger alt i hårde hvidevarer. Lejlighe...
- Leje
- 5.995 kr om måneden
- Placering
- 8200, Aarhus N
- Lejeperiode
- Ubegrænset
- Verificeret udlejer
- Ja
- Dato
- Idag
- Ledig
- 01/02/2026
- Aconto
- 0 kr
- Depositum
- 11.990 kr
- Forudbetalt husleje
- 0 kr
Sted