Totalmoderniseret lejlighed m/altan centralt i Ø-gaderne
-
Areal
- 62 m²
-
Boligtype
- Lejlighed
-
Vær
- 2 værelser
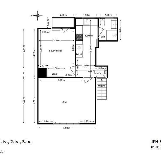
Lys totalmoderniseret 2V på 62 m2 med altan, separat køkken og opvaskemaskine Velkommen til en indflytningsklar 2-værelses lejlighed på 62 m2 med en funktionel planløsning og lyse materialer. Lejligheden byder på en rolig altan mod gårdmiljøet, moderne køkken med opvaskemaskine og et pænt badeværelse – ideel til både enlig og par, der ønsker en nem hverdag i velholdte rammer. Du træder ind i en entré med plads til overtøj og sko samt dørtelefon. Herfra er der adgang til et rummeligt opholdsrum med brede vinduespartier, der lader lyset strø...
- Leje
- 6.100 kr om måneden
- Placering
- 9000, Aalborg
- Lejeperiode
- Ubegrænset
- Verificeret udlejer
- Ja
- Dato
- 11 dage siden
- Ledig
- 15/02/2026
- Aconto
- 750 kr
- Depositum
- 18.300 kr
- Forudbetalt husleje
- 0 kr
Sted