10 m² værelse i København

Areal
10 m²
Boligtype
Værelse
Vær
1 værelse

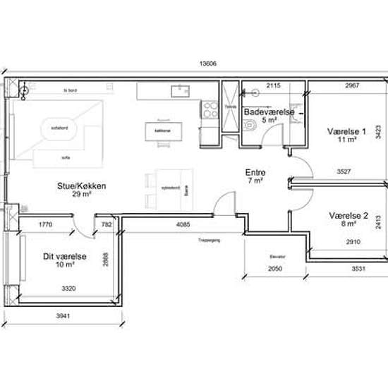
From 1st of January. The Setup Our cutrent rommate is moving out at the end of December, so we’re looking for someone to move into our lovely apartment in Teglholmen, Copenhagen SV starting January. The available unfurnished room is 10 square metres (see floor plan in the photos) and gets great afternoon/evening sunlight. The apartment has a spacious balcony directly over a canal with afternoon and evening sun - perfect for relaxing, tanning, or just hanging out. We're super close to everything: only 100 meters to the M4 metro, right next ...

Leje
6.401 kr om måneden
Placering
København
Lejeperiode
-
Verificeret udlejer
Nej
Dato
I går
Ledig
Kontakt udlejer
Aconto
Kontakt udlejer
Depositum
Kontakt udlejer
Forudbetalt husleje
Kontakt udlejer
Sted