4 værelses lejlighed i København N
-
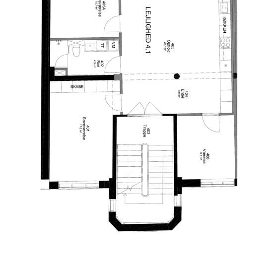
Areal
- 122 m²
-
Boligtype
- Lejlighed
-
Vær
- 4 værelser
Charmerende, lys og nyere renoveret lejlighed beliggende på 3. sal lige ved Søerne i København. Da lejligheden ligger i baghuset til ejendommen i starten af Nørrebrogade, er den ganske ugenert, men stadig med et skønt lysindfald. Fra ejendommen er der kun få minutters gang til gode indkøbsmuligheder, caféer og restauranter, smukke grønne områder samt Nørreport Station med de bedste tog- og busforbindelser. Lejligheden indeholder: Fra den smukke opgang er der direkte adgang til et stort og lyst køkken/alrum med alle hårde hvidevarer og med s...
- Leje
- 23.500 kr om måneden
- Placering
- 2200, København N
- Lejeperiode
- -
- Verificeret udlejer
- Ja
- Dato
- 5 dage siden
- Ledig
- 15/02/2026
- Aconto
- 1.500 kr
- Depositum
- 70.500 kr
- Forudbetalt husleje
- 70.500 kr
Sted