9 m² værelse i København
-
Areal
- 9 m²
-
Boligtype
- Værelse
-
Vær
- 1 værelse
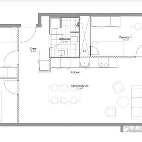
Vi søger en ny roomie til vores fireværelses lejlighed i Ørestad, da vores skønne nuværende roomie, flytter sammen med en god veninde. Det ledige værelse er markeret på plantegningen, 9 kvm, og ledigt fra 1. februar (vi kan dog være fleksible mht. overtagelse). Lejligheden er 96 kvm med tre værelser, køkkenalrum, badeværelse med egen vaskemaskine, og altan. Lejligheden er placeret i Ørestad med nem adgang til handlemuligheder, metro, Kalvebod Fælled, Fields og koncerter i Royal Arena (som ikke kan høres i lejligheden!). Jeg selv fylder 22...
- Leje
- 5.306 kr om måneden
- Placering
- København
- Lejeperiode
- -
- Verificeret udlejer
- Nej
- Dato
- 3 dage siden
- Ledig
- Kontakt udlejer
- Aconto
- Kontakt udlejer
- Depositum
- Kontakt udlejer
- Forudbetalt husleje
- Kontakt udlejer
Sted