Lækkert og helt nyt rækkehus
-
Areal
- 101 m²
-
Boligtype
- Hus
-
Vær
- 3 værelser
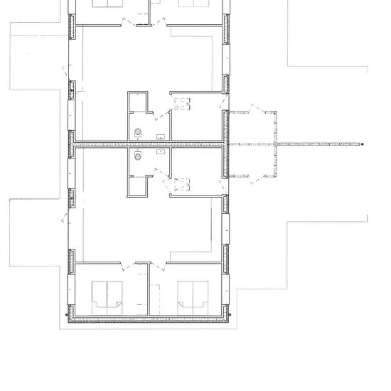
Lækkert og helt nyt rækkehus i den mest eksklusive bebyggelse i Assentoft. Naturskønt og med god plads omkring husene. Nogle har udsigt over marker og skov. Husene er alle bygget som dobbelthuse så man kan gå rundt om egen bolig. Byggeriet er tilpasset det skrånende landskab. Her får du en lækker bolig med gulvvarme overalt. 2 soveværelser og en stor vinkelstuestue der er i åben forbindelse med køkkenet. Dejligt bryggers med plads til vaskemaskine og tørretumbler samt bordplade med håndvask. Badeværelse med bruseniche og egen carport med s...
- Leje
- 10.900 kr om måneden
- Placering
- 8960, Randers SØ
- Lejeperiode
- Ubegrænset
- Verificeret udlejer
- Ja
- Dato
- I går
- Ledig
- Kontakt udlejer
- Aconto
- 0 kr
- Depositum
- 32.700 kr
- Forudbetalt husleje
- 10.900 kr
Sted