Kun til expats - lejlighed tæt ved vandet og med egen have
-
Areal
- 109 m²
-
Boligtype
- Lejlighed
-
Vær
- 3 værelser
Ledig nu
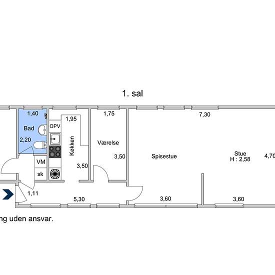
Fin lejlighed beliggende tæt ved Svanemølle strand, Hellerup Havn og Østerbrogade. Det tager ikke mange minutter at gå ned til vandet eller til Waterfront i Hellerup eller til indkøb på Østerbrogade. Området er stille og stadig centralt beliggende. Lejligheden indeholder entré hvorfra der er et større værelse ved indgangen. Fra entréen går man op af en trappe til en længere fordelingsgang hvorfra der er adgang til endnu et værelse, badeværelse med brus, køkken og for enden af gangen kommer man til en stor stue hvorfra der er udgang til en st...
- Leje
- 20.500 kr om måneden
- Placering
- 2100, København Ø
- Lejeperiode
- Mere end 12 måneder
- Verificeret udlejer
- Ja
- Dato
- 15 dage siden
- Ledig
- Ledig nu
- Aconto
- Kontakt udlejer
- Depositum
- 61.500 kr
- Forudbetalt husleje
- Kontakt udlejer
Sted